Finished (Heated and Cooled) Areas


Heated Area Main Floor

2188

Heated Area Second Floor

0

Total Finished Square Footage

2188

Unfinished (unheated) Areas


Front Porch

198

Rear Porch

283

Other Porches

0

Garage

626

Storage

29

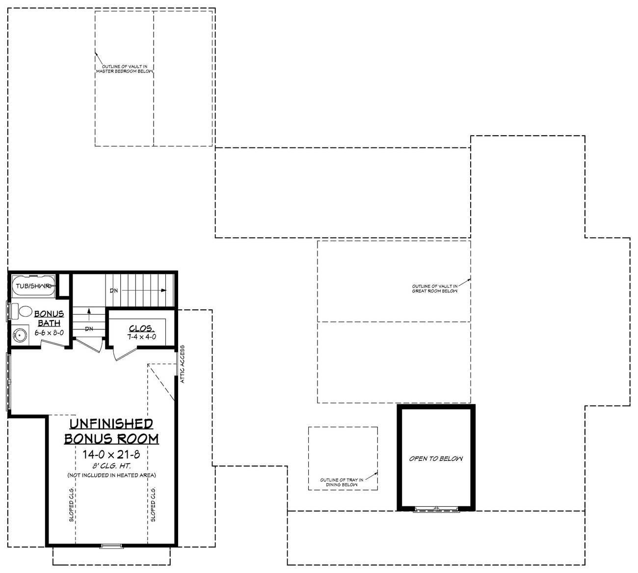
Bonus Room

471

Other

0

Total Unfinished Square Footage

1607

Additional Plan Specs


Primary Roof Pitch

9:12

Other Roof Pitches

12:12, 4:12, 3:12

Walden House Plan

Walden House Plan

Plan Number:

SKU:2188T

  • sq-feet-icon 2188 Sq Ft.
  • stories-icon 1.5 Stories
  • bedroom-icon 3 Beds
  • bath-icon 2.5 Baths
  • width-icon 69-0 Width
  • depth-icon 61-10 Depth
Regular price Buy From: $ 1395
Regular price Sale price $ 1,395.00
Sale Sold out

Options

View full details

Pricing Options:

PDF Files (Single Use and Unlimited Use Available)

This is a read-only electronic copy of the plans, delivered via email (no printed sets will be shipped). It includes a license to build the structure either once (Single-Use License) or multiple times (Unlimited-Use License), depending on the option purchased. You may print multiple copies of the plans as needed. This package also grants the right to modify the plans; however, any derivative works remain protected under federal copyright law.

5 Sets of Plan Plus PDF File

This package includes five printed sets of plans mailed directly to you, along with a Single-Use License (license will be sent via email) to build the structure one time. Plans are typically printed on 24x36  (ARCH D) bond paper. You’ll also receive a PDF version of the plans delivered via email for added convenience.

CAD Files

Electronic files in .DWG format (version may vary) are provided for use by a local designer, architect, or engineer to make minor or major modifications. Files are typically delivered via email; no printed sets will be shipped. This package includes an Unlimited Use License, granting the right to modify, reproduce, and construct an unlimited number of homes based on the plan. CAD software will be required to open and modify thise plans.

Important Information:

All Sales are Final. Due to copyright protections and the digital nature of our products, all sales are final and plans cannot be returned or refunded once your order has been placed.

If you need assistance selecting the right home plan before purchasing, please contact our customer service team. We’re committed to helping you find the perfect plan and ensuring your home plan buying experience is a success.

These plans are NOT stamped by a structural engineer or registered architect and were designed to meet the current building code at the time of their design, such as the International Residential Code. Due to regional requirements such as: high wind areas, seismic conditions, soil conditions, snow loads and other specific circumstances, we encourage you to consult with an engineer or architect familiar with conditions in your area prior to building. In addition, local building departments may require that the plans be reviewed and/or modified to comply with local requirements. Please contact your local building department before placing your order.